Beschreibung
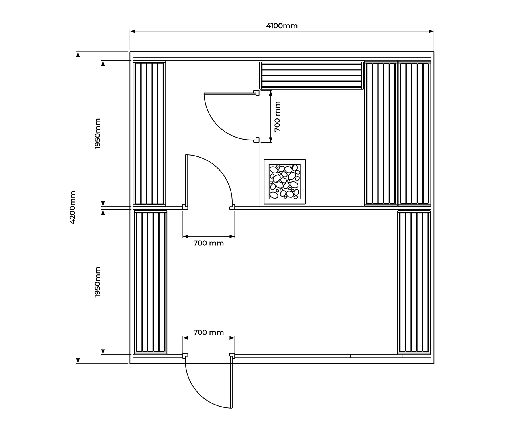
Nette große ovale Sauna (4,2x4m)
- Die Wände sind aus 42 mm Fichte
- Die Saunabühne besteht aus Erlenholz
- Das Dach ist mit Wabenruberoid gedeckt
- Die Sauna ist von Edelstahlgeflecht eingefasst
- Die Außenveredelung erfolgt mit Remmers HK Lasur oder Tikkurila Terrassenöl
- Die Holztür ist abschließbar und hat ein Fenster
- Die Tür zum Saunaraum ist aus Glas
- Der Dampf wird entweder in einem holzbeheizten Hitzstein oder in einem Elektroheizer erzeugt
- Für Frischluft sorgt das Belüftungssystem
- Das Volumen des Wassertanks beträgt je nach Wunsch des Auftraggebers entweder 30 oder 40 Liter
- Der Saunaraum verfügt über eine Bühne und Sitzbänke aus Erlenholz
- Bodengitter in Vor- und Saunaraum
- Es gibt ein rundes Fenster im Vorraum (auf besonderen Wunsch können wir auch einen Vorraum mit mehreren Fenstern bauen)
- Lieferung einschließlich Geflecht aus rostfreiem Edelstahl und verstellbaren Klemmen
- Rundes 800-mm-Fenster inklusive
- Montage beim Kunden 700 € + MwSt.
- Wenn Sie möchten, können Sie die Sauna als Gesamtpaket bestellen, indem Sie uns hier kontaktieren
- Der Saunaraum hat ein rundes Fenster (auf besonderen Wunsch können wir auch einen Saunaraum mit mehreren Fenstern bauen)
- Die Terrasse verfügt über Sitzbänke
Saunen benötigen keine Baugenehmigung






